Fenêtres pivotantes
Fenêtres pivotantes
Application :
Les fenêtres pivotantes constituent une alternative intéressante aux fenêtres classiques.
Elles sont utilisées dans la construction résidentielle, notamment sur les marchés scandinaves.
Elles représentent une solution intéressante, en particulier lorsque l’espace intérieur est limité.
Caractéristiques :
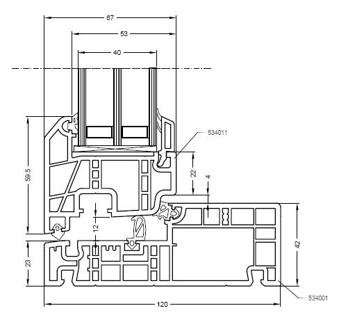
Forme : rectangulaire
Profondeur d’encastrement du cadre : 120 mm
Mode d’ouverture : le vantail pivote à 180 degrés (axe de rotation horizontal)
Possibilité d’utiliser un vitrage d’une épaisseur de 24 ou 36 mm en double ou triple vitrage.
Équipement :
– La fenêtre s’ouvre à l’aide d’une poignée (coudée) montée dans la partie inférieure du vantail.
– Quincaillerie IPA
– dispositif de sécurité empêchant l’ouverture non souhaitée par les enfants (appelé restrictor)
Options : poignée à clé, fraisage du cadre
Avantages :
– nettoyage facile des fenêtres
– après rotation du vantail de 180° – nettoyage confortable de la face extérieure du vitrage
– grande durabilité et fonctionnalité sur une longue période d’utilisation
– excellente étanchéité (la pression du vent plaque le vantail contre le cadre)
Réalisation :
Système dédié REHAU NORDIC DESIGN PLUS




